Home Search
Browse Listings to Buy
Grape Street 83590 Grape Street 1Denver, CO 80207




Mortgage Calculator
Monthly Payment (Est.)
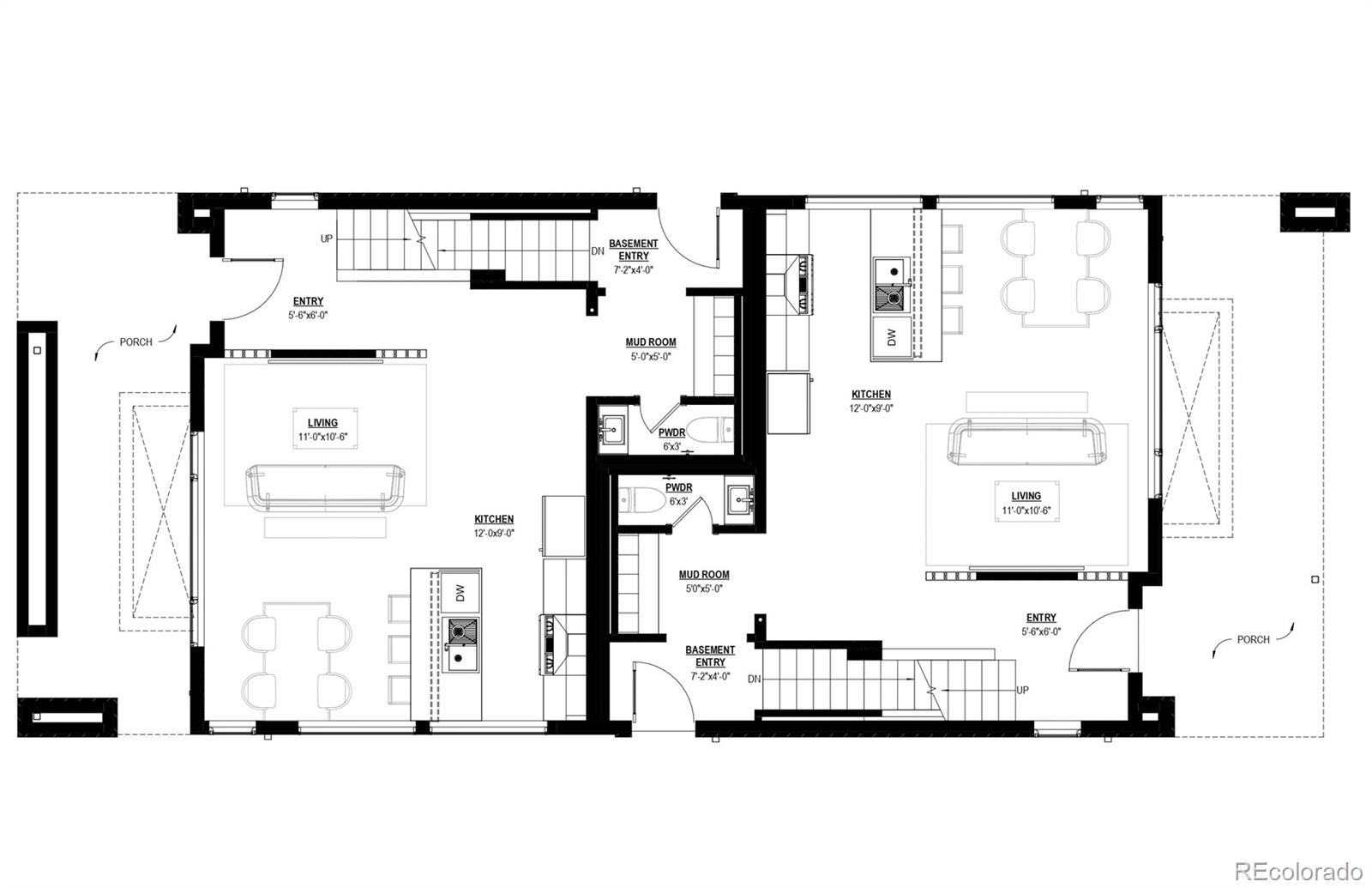
$3,260Grape Street 8 – 4 individual Duplex lots bring Modern Duplex Living in the Heart of Park Hill Grape Street 8 is an exciting new development transforming a former church site into four modern duplexes under E-TU-B zoning, thoughtfully maximizing the 18,200 sq ft lot. Located in the heart of Denver’s beloved Park Hill neighborhood, this project blends new-construction quality with attainable pricing and offers pre-sale opportunities for buyers to semi-customize finishes and selections. Each residence features 3 bedrooms, 3.5 bathrooms, and nearly 2,000 sq ft of thoughtfully designed living space. The homes include finished basements with 9-foot ceilings, enhancing the sense of openness and comfort. Basements also feature kitchenettes and lock-off options, creating excellent flexibility for short-term or long-term rental income, guest suites, or multi-generational living. The architecture complements the surrounding historic brick character of Park Hill, while delivering modern layouts and contemporary finishes buyers expect from new construction. Location, Location, Location Living at Grape Street 8 means being close to some of Denver’s best amenities: • Spend weekends at City Park, home to the Denver Zoo and the Denver Museum of Nature & Science • Enjoy brunch, coffee, and dining at Park Hill’s neighborhood favorites • Explore food, drinks, and boutique shopping at Stanley Marketplace • Convenient access to The Shops at Northfield and York Street Yards With quick access to downtown Denver, RiNo, and major commuting routes, getting around the city for work or nightlife is effortless. Quiet neighborhood charm meets city convenience — the perfect Denver lifestyle. FRONT UNIT.
| 5 days ago | Listing updated with changes from the MLS® | |
| 2 weeks ago | Listing first seen on site |
The content relating to real estate for sale in this Web site comes in part from the Internet Data eXchange ("IDX") program of METROLIST, INC., DBA RECOLORADO real estate listings held by brokers other than Apex Real Estate Solutions Llc are marked with the IDX Logo. This information is being provided for the consumers' personal, non-commercial use and may not be used for any other purpose. All information subject to change and should be independently verified.

Did you know? You can invite friends and family to your search. They can join your search, rate and discuss listings with you.